广东清远·清新亚朵酒店
2021-07-26

ym1.jpg


01.jpg

▲大堂竹居

02.jpg

▲大堂入口

03.jpg

▲大堂接待

04.jpg

▲大堂书吧

05.jpg

▲大堂

07.jpg

▲电梯厅

08.jpg

09.jpg

▲餐厅


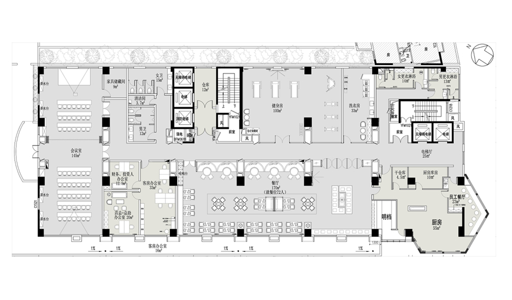
平面.jpg

▲一层平面图

三层平面.jpg

▲三层平面图




项目名称:清远清新亚朵酒店

设计总监:彭琦

设计团队:劳耀锋  杨清峰 林志武 吴巧婷 姚少芬

项目地点:清远

设计时间 DESIGN:2019年10月

设计面积:7450m²