01
连接人与自然 平衡治愈

纯粹、简单的东西往往更能直触心底。将生活的美好交付于自然,大面积的采光带来的广阔的视野感,暖黄的空间色调将主人的品味展现出来,感受自然的馈赠与生活的质感。


客厅整体上以开阔布局、明朗光线、高级色调为主,营造出惬意的安适感同时,注入别具一格的元素,让每一个角落都真正成为身心、精神的归属地。



会客厅的落地窗设计搭配大理石地板,柠檬黄的沙发做点缀,整个空间充满了通透感,让身处其中的客人不自觉放松下来,言谈间也仿佛置身室外,无拘无束。

方隅花箐萃,明媚光逸采,一切美在岁月沉淀下,如此纯净优雅;让空间极具凝聚的力量,还原家与生活的艺术,塑造专属于家人的过去、现在与未来时光。


选用原木、天然石材等自然材质,搭配大地色系的空间色调与之呼应,颇有温润细腻感。

02
惬意 舒适

阳光自然的倾洒在沙发上、地板上,随着时间不断变化,空间界面慢慢交织在一起,勾勒出自在和谐、温暖包容的共处时光。


灰色的空间内加入蓝色,天空与大地之间有了联系,层次分明的色彩起到丰富整体布局的作用,香槟金的床头灯,泛着透亮的金属光泽,整个角落都被点亮。


设计师在衣帽间这个较为封闭的空间布局上,利用弧形打破规整层次,将玻璃和镜子相结合,形成一个通透、连续的空间体验效果,让功能与视觉都得到满足,轻盈而富有张力。


在米白色的空间中,点缀舒适感非常的棕调窗帘、沙发,以及精致养目的花草。当光线照进屋内的那一刻,温暖、舒适与沉静,在内心充盈。

03
活泼跃动 童趣

相比其他空间的安静,儿童活动区通过色彩与家具的点缀,多了活泼跃动。像一个童话世界,有充满未知的蓝色大海,还有暂时封闭空间的帐篷,一个又一个的梦,飞满了整个天空。


04
随性 自在

移步换景,从门厅、主空间到卧室,景与情都有着密切的联系与变化。

追求健康高雅的生活品质,能量场也要始终向上。运动空间无需过多的装饰,不给身体束缚,也不给空间负担,只想尽情的释放能量。


有别于都市生活的紧张与繁忙感,在这里,只有简单随性和轻松自在。挥洒汗水之后,该坐下来好好喝一杯了,光影婆娑清风绵,偷得浮生半日闲。


一口入魂的好酒,再多也不嫌够。酒窖以复古的浅棕为主色调,和大多数古老的酒庄一样,在这里,酒才是主角,所有的语言都为酒而生。
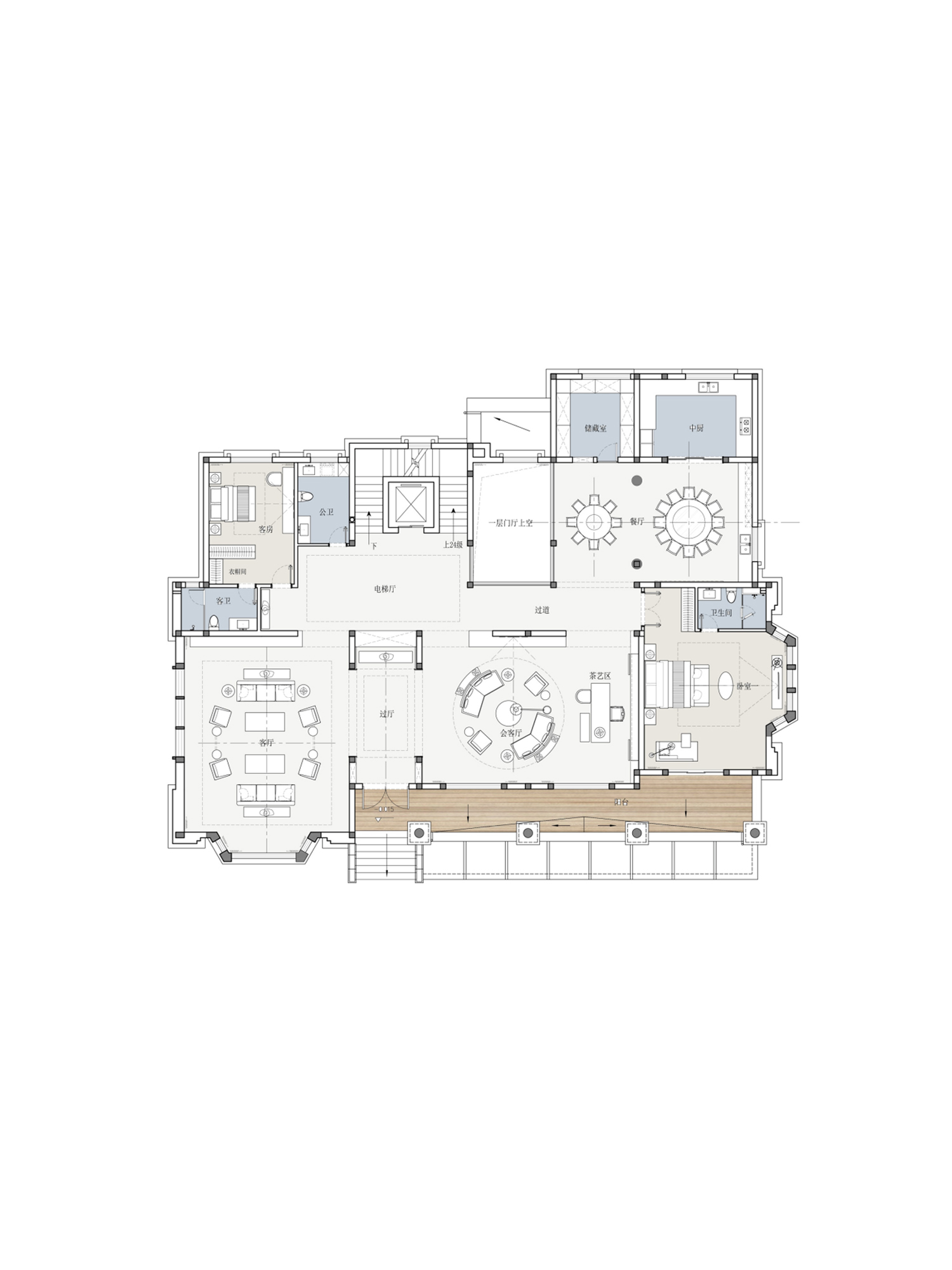
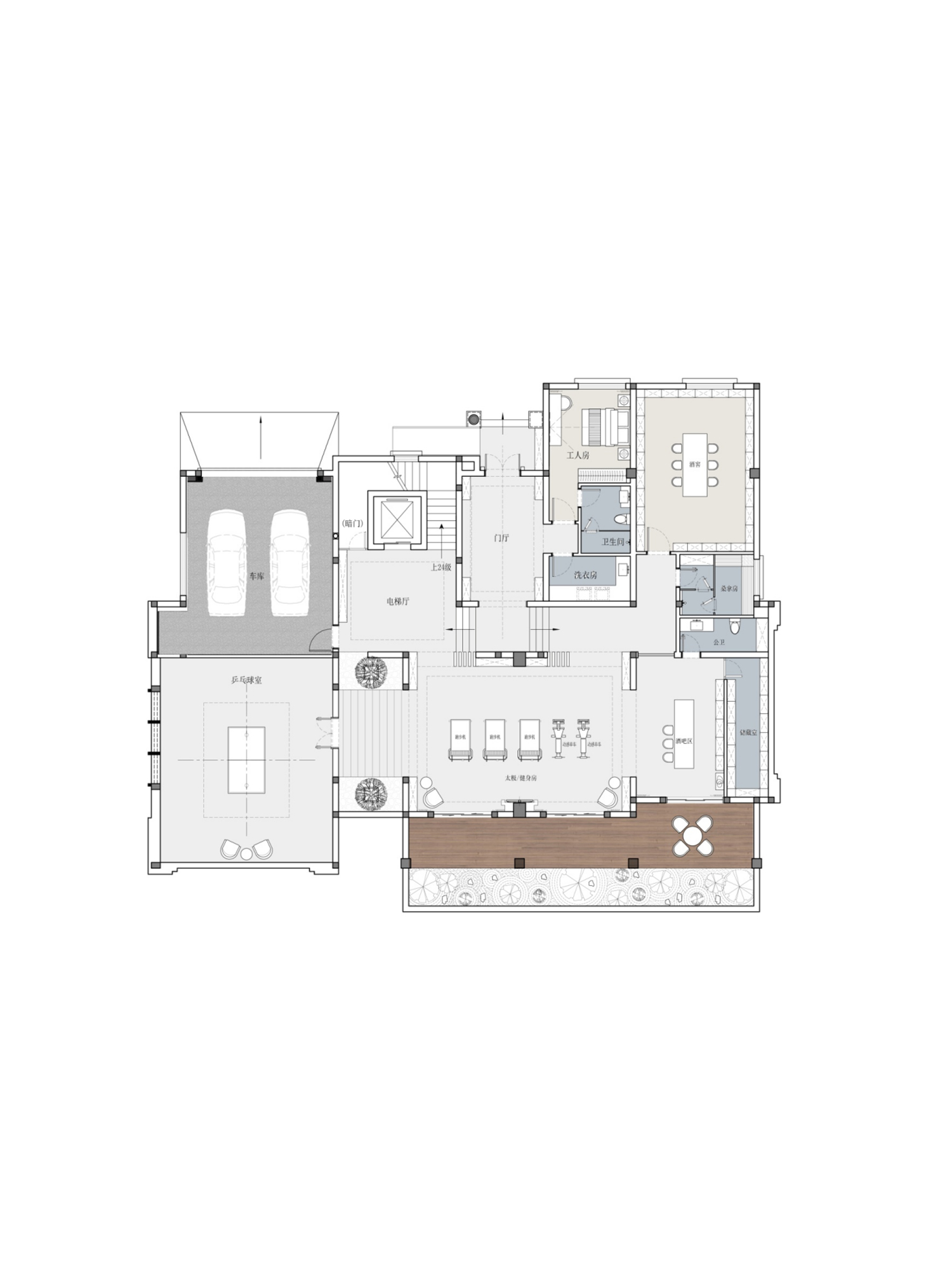
【平面布置图】
▲负一层平面布置图

▲一层平面布置图

▲二层平面布置图

▲三层平面布置图
项目名称 |青岛印象金沙滩别墅
项目地点 |山东 青岛
项目面积 |1500 ㎡
设计时间 |2018年07月
设计总监 |彭琦
设计团队 |吴中立 林志武 杨清峰