广东广州·海珠区上苑亚朵酒店
1970-01-01

ym.jpg

ym1.jpg




6.jpg

7.jpg

▲酒店入口

1.jpg

▲大堂

3.jpg

▲大堂接待区

4.jpg

▲餐厅

5.jpg

▲餐厅取餐区


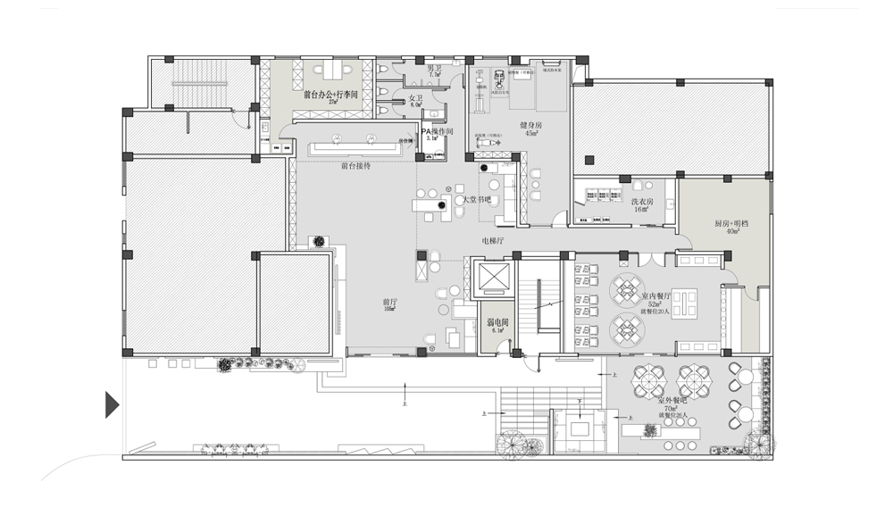
平面图.jpg▲平面布置图






项目名称:广州海珠区上苑亚朵酒店

设计总监:彭琦

设计团队:劳耀锋 杨清峰 林志武 吴巧婷

项目地点:广州

设计时间 DESIGN:2020年01月

设计面积:4000m²