
△项目实景.酒店位于兰州市第一高楼最顶端


登上兰州第一高楼
一个繁杂的兰州城跃然眼帘:
两山相夹的奇特地理,古风的遗荡与现代的喧嚣,
民族杂居的和谐与历史建筑的岿然;
风味小吃的诱惑与羊皮筏子的孤独。
看着5000里黄河线上唯一伏卧在南北两岸的省会城市,
它独特的地理位置完全是黄河的巧夺天工。

万物生长——“解构野性的诗意”
项目作为兰州最云端的酒店,
不仅要让我们看到西北浓烈的旷野气息,
更要让我们感受到人与梦想难以割舍的情怀,
这是一个向探寻未知领域探索者致敬的“时空艺术长廊”。


△首层过厅
展示艺术,是不可知的干预,重塑可感可思的场所精神,将“场景展示艺术融入间”的实践,付诸空间的整体设计,以“时光林”的概念承载与自然的合鸣,为每一个到店的客人打造一个可追忆的旅程。

△三十八层空中大堂


山石介入室内,石块在风蚀雨侵中,残缺坑洼的不规则表面,记录着自然的痕迹,让室内与自然完全相融。同时,也是对于场地精神的绝对呼应,勾连着自然地域的记忆。









人文与自然,时尚与传统

为空间引入充裕的自然光。阳光、明媚的色彩映照出原木风的温润,带来惬意生活的抒情格调。使空间成为悦动的情诗,呈现与户外环境共生的质感。




绿色既代表了的富有生命力的“新生”,又能形成一种与自然为伴的印象。没有喧宾夺主,在互动中有自己的诗意。温润的质感让整个空间拥有了沉淀的气质。

艺术以多元的形式深入其中,将丰富的创造与想象延展至关乎人、空间和自然关系的审视。



运用自然空间的灵魂色彩作为基底。整体呈现淡雅的质感,以承自然形态,透过变化的结构与光影丰富空间的探索性。


黑与白的渗透,刚与柔的碰撞,内隐的气韵与外显的力道,纤细的纹理与粗粝的材质,皆得均衡之相。

△三十八层餐厅







△电梯厅

△套房

△客房


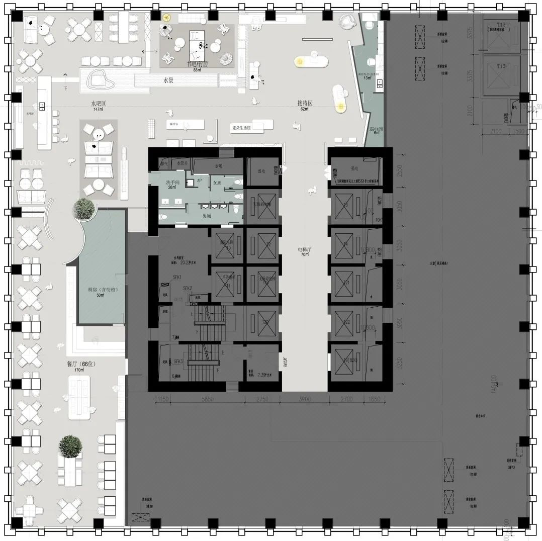
△一层大堂平面布置图

△三十八层空中大堂平面布置图
项目名称 |兰州市南关十字亚朵S酒店
项目地点 |甘肃 兰州
项目面积 |10850m²
设计时间 |2022年10月
设计总监 |彭琦
设计团队 |钟颖 杨清峰 廖耀文 吴巧婷 胡燕妮 曾均浩