北京望京·悠乐汇亚朵酒店
2022-08-30

image.png

▲大堂接待



▲竹居书吧


▲餐厅入口

▲就餐区

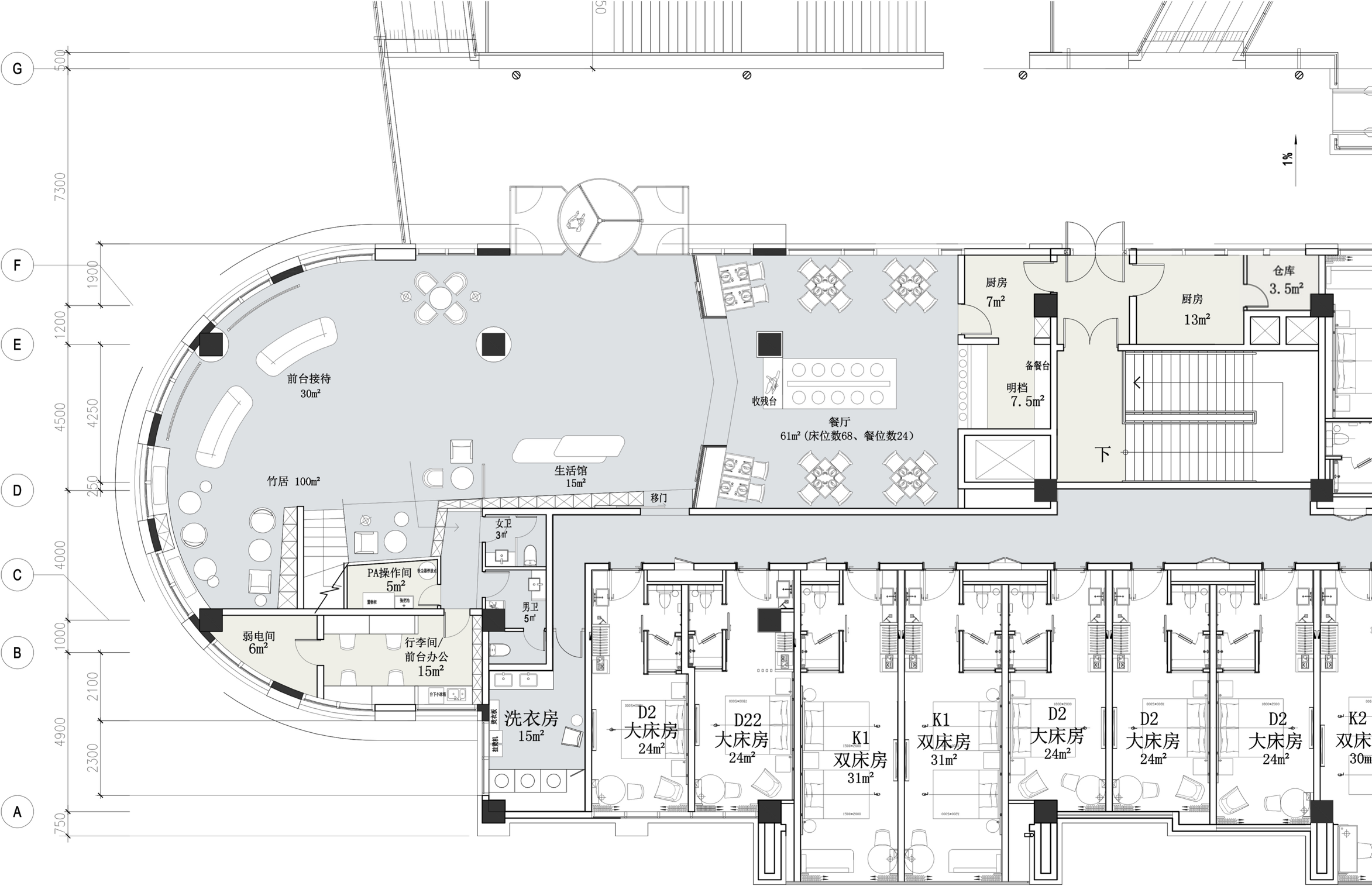
图片1.png




▲首层公区平面图


项目名称|望京·悠乐汇亚朵酒店

项目地点|北京

项目面积|2200m²

设计时间|2019年08月

设计总监|彭琦

设计团队|汪明祥 吴均强 朱勇健